Канатний електричний тельфер СТТ "Складова Техніка"

Канатний електричний тельфер СТТ "Складова Техніка"

  • Вантажопідйомність: від 1000 кг до 5000 кг
  • Висота підйому: 6 м, 9 м та 12 м
  • Кратність поліспасту: 2/1
  • Група FEM 9.511: 2m
  • Електродвигун підйому: з конусним ротором та вбудованим гальмом
  • Електродвигун: з циліндричним ротором
  • Швидкість підйому: 8/2 м/хв
  • Швидкість пересування: 20 м/хв
  • Верхня підвіска: стаціонарна, на електричному візку (нормальна монорейка)
  • Управління: контакторне
  • Напруга живлення: трифазна -380V/50Hz

Контакт для оперативного замовлення:

Максименко Віталій

+38 (050) 356-77-83

vitaliy@gutman.com.ua 

Григорій Гуминюк 

+38 (050) 381-52-70

grigori@gutman.com.ua  

 

Опції:

  • напруга живлення різна від 380V/50Hz;
  • електродвигун механізму пересування із вбудованим гальмом;
  • різні швидкості пересування та підйому;
  • термозахист на електродвигунах;
  • обмежувач вантажопідйомності;
  • дистанційне управління;
  • частотне керування;
  • друге гальмо на підйомному механізмі;
  • Кліматична зона: нормальна, холодна, тропічна та морська.

 

 

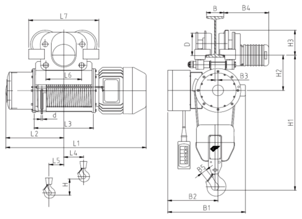
1.Електродвигун для механізму підйому. Механізм підйому приводиться в дію через асинхронний електродвигун з конічним ротором та вбудованим конічним гальмом, яке спрацьовує при дії спіральної пружини під тиском. Відключення гальма здійснюється при переміщенні осьової ротора в момент пуску електродвигуна, при цьому долається сила стиснутої пружини. Таке конструктивне рішення гарантує надійне вимкнення у разі припинення подачі живлення ротора, і у спеціальному електромагнітному гальмі немає потреби. При використанні двошвидкісних електродвигунів – використовуються базова та мікро швидкість підйому.

2.Планетарний редуктор. Планетарний редуктор сконструйований таким чином, щоб знижувати швидкість двигуна до прийнятних для барабана значень. Завдяки зовнішньому кріпленню на барабані забезпечується простота у приєднанні до корпусу електродвигуна та зручність в обслуговуванні. Зубчасті колеса (шестірні) зчеплення в редукторі виготовлені із високоякісної сталі, загартованої належним чином. Вони встановлені на шарикопідшипниках, працюють у масляній ванні.

3.Муфта. Передача крутного моменту від електродвигуна до осі редуктора здійснюється через поздовжню еластичну муфту, що компенсує (врівноважує), що забезпечує аксіальний рух ротора при мінімальному опорі. Використання металевих складових гарантує безперервну передачу моменту, що крутить.

4.Барабан. Порожнистий вал, що йде від редуктора, надає руху барабан централізовано через спіральну шліцеву муфту. Порожнистий вал і двоступінчаста шестерня редуктора обертається на роликових підшипниках, які підтримують барабан за допомогою шліцевого з'єднання редуктора. З іншого кінця несе барабан-спирається на оболонку електродвигуна. Спеціальна внутрішня канавка для кріплення кінця каната до барабана виготовлена із спеціальним профілем, що відповідає вимогам стандартів.

5.Канатоукладач. Канатоукладач складається з двох базових елементів – з напрямної гайки та затискної пружини, які забезпечують точність намотування каната по спіральному жолобі барабана.

6. Корпус. Корпус-це комплексна деталь, і в той же час несуча деталь підйомного механізму, є цільно-зварювальною конструкцією, що складається з двох сталевих флангу, приєднану до профільних поздовжніх рейкових шляхів. Ухвалена геометрична форма корпусу забезпечує зручність монтажу електротельфера в різних положеннях, при цьому є кілька можливих варіантів для виходу вантажного каната.

7.Крукова підвіска. Конструкція гакової підвіски з різними поліспастами гарантує надійність передачі зусилля навантаження через гак і деталі, що несуть до гілок вантажного каната. Оболонка блоку роликів досить надійно захищає ролики, в той же час чохол має високу міцність при дії на жорсткозакріплені елементи. Діаметр каната, канатні блоки (шків) та вантажопідйомність гака підбирають відповідно до чинних нормативів.

8.Пульт управління. Пульт управління є окремим складальним вузолом, який складається з електричної панелі та ключа панелі управління (вимикача в ланцюгу управління). На панелі управління є такі елементи: пускач для управління механізмами підйому і пересування, реле обмежувача навантаження та ін. Робота з пультом здійснюється через вимикач управління, що звисає. Напруга, що використовується під час роботи, безпечна і становить 24V, що досягається за допомогою понижуючого трансформатора, і обмотка даного трансформатора не має електричного підключення.

9. Механізм пересування. Прикріплений до механізму підйому механізм горизонтального пересування вантажу може бути з електричним або ручним переміщенням. Електричне переміщення можливе завдяки асинхронному електродвигуну з вбудованим гальмом. Залежно від потреб експлуатації, розроблені механізми пересування різних моделей: для пересування одним або двома рейковими шляхами. У монорейковій системі - підвіска підйомного механізму може бути для нормальної будівельної висоти (прикріплена під рейковим шляхом) або для зменшеної будівельної висоти (прикріплена збоку рейкової колії). Конструкція механізму пересування дозволяє експлуатацію на монорейкових дорогах, виготовлених із стандартних профілів шириною від 90 до 300 мм.