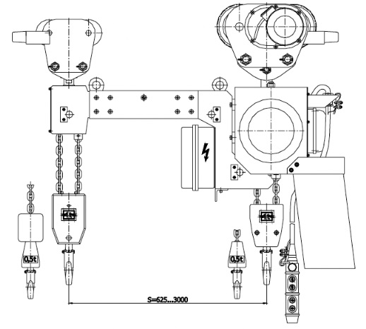
Електротельфери ланцюгові "Складова Техніка" серія BDH


Електротельфери ланцюгові (талі ланцюгові) серії BDH
- Вантажопідйомність: 500+500 кг; 1000+1000 кг;
- Висота підйому:
- максимум 24 м (поліспаст 1/1);
- максимум 12 м (поліспаст 2/1);
- Кратність поліспасту: 1/1; 2/1
- Група FEM 9.511:1Аm:
- Електродвигун підйому: з конусним ротором та вбудованим гальмом;
- Електродвигун для пересування: з конусним або циліндричним ротором;
- Швидкість підйому:
- основна/мікро 8/2 м/хв, (поліспаст 1/1)
- основна/мікро 4/1 м/хв, (поліспаст 2/1)
- Швидкість пересування: 20 м/хв;
- Верхня підвіска: на електричному візку;
- Управління: контакторне;
- Напруга живлення: трифазна -380V/50Hz
Контакт для оперативного замовлення:
Максименко Віталій
+38 (050) 356-77-83
Григорій Гуминюк
+38 (050) 381-52-70
| |||||||||||||||||||||||||||||||||||||||||||||||||||||||||||||||||||||||||||||||||||||||||||||||||||||||||||
| |||||||||||||||||||||||||||||||||||||||||||||||||||||||||||||||||||||||||||||||||||||||||||||||||||||||||||
| |||||||||||||||||||||||||||||||||||||||||||||||||||||||||||||||||||||||||||||||||||||||||||||||||||||||||||
| |||||||||||||||||||||||||||||||||||||||||||||||||||||||||||||||||||||||||||||||||||||||||||||||||||||||||||



